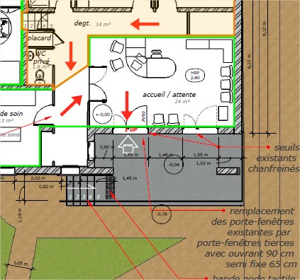
Dossier ERP d'un cabinet vétérinaire

architecte Lalbenque Sud du Lot Tarn et Garonne conception travaux étude

Dossier ERP d'un cabinet vétérinaire


Client :NC

Maitre d'ouvrage : privé

Projet :  changement de destination aménagement

Situation : Lalbenque Lot (46)

Date : 2016

crédit photo : CLAS

 


Écrire commentaire

Commentaires: 0